8 Place d'Amsterdam - Expobat Plan de Campagne 13480 Cabriès
Projet de construction d'une maison 70 m² avec terrain à JOUQUES (13)
- /
- Nos offres Maison+Terrain
- /
- Projet de construction d'une maison 70 m² avec terrain à JOUQUES (13)










A propos de cette offre
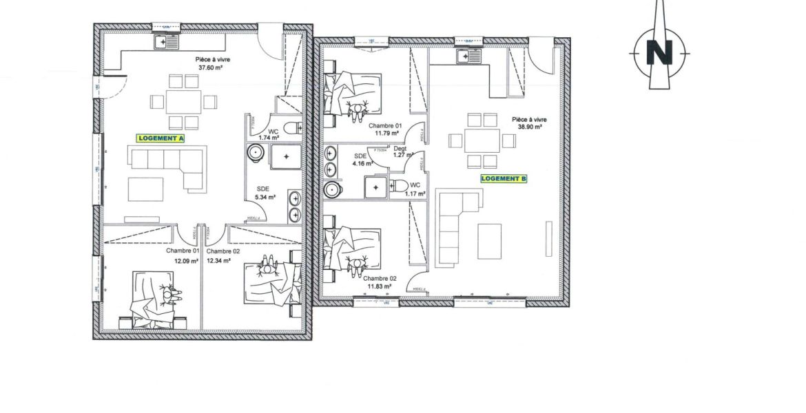
A JOUQUES sur un terrain de 655 m², TRADISUD vous propose de réaliser cette maison neuve d'une surface de 70 m² habitables avec 2 chambres.+
Informations du terrain : TERRAIN A - LOTISSEMENT LES JARDINS DE BEA
SEULEMENT 2 LOTS en exclusivité
Prix imbattable pour un terrain rare en plein cœur de Jouques.
A Jouques en plein coeur du village (dans le centre du village), sur 2 lots à bâtir indépendants et bornés, plats et calme, récemment crées.
A PARTIR DE 429 500€ (logement A terrain + maison)
Maisons TRADISUD vous propose ce logement mitoyen RE2020 de 70m2 avec 2 chambres et environ 655m2 de terrain indépendants avec pour chacun un accès au ruisseau. La construction est une maison neuve RE2020, 2 chambres et pièce à vivre d'environ 40m2 et un jardin découpé de sorte à ne pas avoir de vis à vis.
Prestations très soignées et équipements RE2020 avec gainable, vélux dans salle de bains, volets roulants et menuiseries grises anthracites RAL7016, hauteur VS 1m, enduit frotassé, possible carrelage 60x60 ou plus, carrelage compris dans les chambres,
Viabilités en bordure.
Etudes de sol G2 et complémentaires réalisées avec fondations spéciales prises en compte financièrement.
Garanties décennales et Dommage Ouvrage
Informations et renseignements :
Contactez Mr Rodriguez 06 64 09 34 03 pour visite sur place ou bien rdv dans nos bureaux à Cabriès MY EXPOBAT (Plan de Campagne) 04 42 02 69 99
Prix hors VRD, frais de notaire non compris, frais divers non compris.
Contactez Sébastien RODRIGUEZ au 06 64 09 34 03 ou au 04 42 02 98 99 (Tradisud - Siège de Cabriès).
Prix hors VRD, terrain viabilisé, frais de notaire non compris, frais divers non compris. Terrain sélectionné et vu pour vous sous réserve de disponibilité et au prix indiqué par notre partenaire foncier. Visuels non contractuels.
Caractéristiques
- Modèle présenté : JOUQUES LOGEMENT A
- Surface : 70 m²
- Pièces : 3
- Chambres : 2
- Garage : m2
- Commune : 13490 JOUQUES
- Surface terrain : 655 m²
- En lotissement : non
- Prix : 215 000 €
Informations complémentaires
TERRAIN A - LOTISSEMENT LES JARDINS DE BEA SEULEMENT 2 LOTS en exclusivité Prix imbattable pour un terrain rare en plein cœur de Jouques. A Jouques en plein coeur du village (dans le centre du village), sur 2 lots à bâtir indépendants et bornés, plats et calme, récemment crées. Informations et renseignements : Contactez Mr Rodriguez 06 64 09 34 03 pour visite sur place ou bien rdv dans nos bureaux à Cabriès MY EXPOBAT (Plan de Campagne) 04 42 02 69 99 Prix hors VRD, frais de notaire non compris, frais divers non compris.Localisation
