8 Place d'Amsterdam - Expobat Plan de Campagne 13480 Cabriès
Projet de construction d'une maison 105 m² avec terrain à LE PUY-SAINTE-REPARADE (13)
- /
- Nos offres Maison+Terrain
- /
- Projet de construction d'une maison 105 m² avec terrain à LE PUY-SAINTE-REPARADE (13)












A propos de cette offre
A LE PUY-SAINTE-REPARADE sur un terrain de 902 m², TRADISUD vous propose de réaliser cette maison neuve d'une surface de 105 m² habitables avec 3 chambres.
TRADISUD vous propose les prestations suivantes :
- Plan sur-mesure et personnalisé de 2 à 5 chambres
- Mode de chauffage au choix
- Grands choix d'équipements et de prestations
- Matériaux de qualité selon les normes en vigueur
- Accompagnement dans le choix et l’acquisition du terrain
- Construction conforme à la nouvelle RE 2020
Informations du terrain : Superbe terrain d'environ 902 m² exposé plein Sud, au coeur d'un lotissement résidentiel de 10 lots.
Vendu entièrement viabilisé.
La surface de plancher autorisée est de 300 m².
Demandez une étude gratuite et personnalisée de votre projet de construction !
Contactez Sébastien RODRIGUEZ au 06 64 09 34 03 ou au 04 42 02 98 99 (Tradisud - Siège de Cabriès).
Prix hors VRD, terrain viabilisé, frais de notaire non compris, frais divers non compris. Terrain sélectionné et vu pour vous sous réserve de disponibilité et au prix indiqué par notre partenaire foncier. Visuels non contractuels.
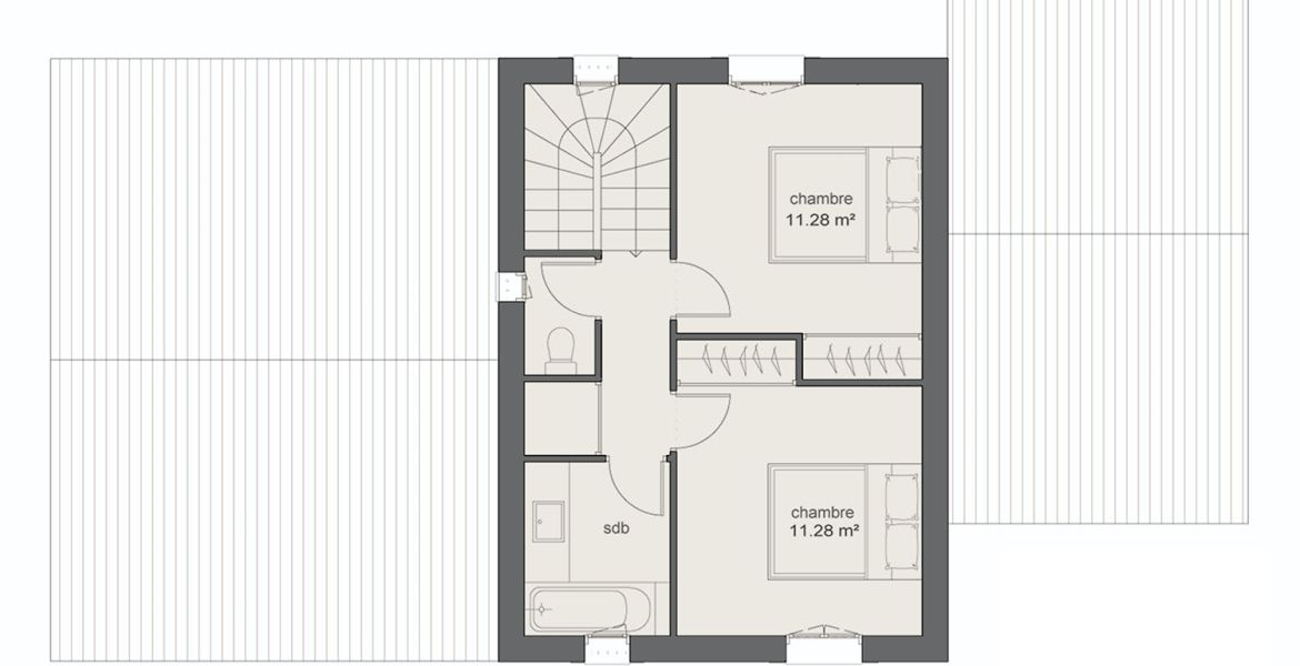
Caractéristiques
- Modèle présenté : TURQUOISE 3 - 3CH105
- Surface : 105 m²
- Pièces : 5
- Chambres : 3
- Nb salle de bains : 2
- Garage : 17.8 m2
- Commune : 13610 LE PUY-SAINTE-REPARADE
- Surface terrain : 902 m²
- En lotissement : non
- Prix : 352 000 €
Informations complémentaires
Superbe terrain d'environ 902 m² exposé plein Sud, au coeur d'un lotissement résidentiel de 10 lots. Vendu entièrement viabilisé. La surface de plancher autorisée est de 300 m².Localisation