8 Place d'Amsterdam - Expobat Plan de Campagne 13480 Cabriès
Projet de construction d'une maison 95 m² avec terrain à RIANS (83)
- /
- Nos offres Maison+Terrain
- /
- Projet de construction d'une maison 95 m² avec terrain à RIANS (83)










A propos de cette offre
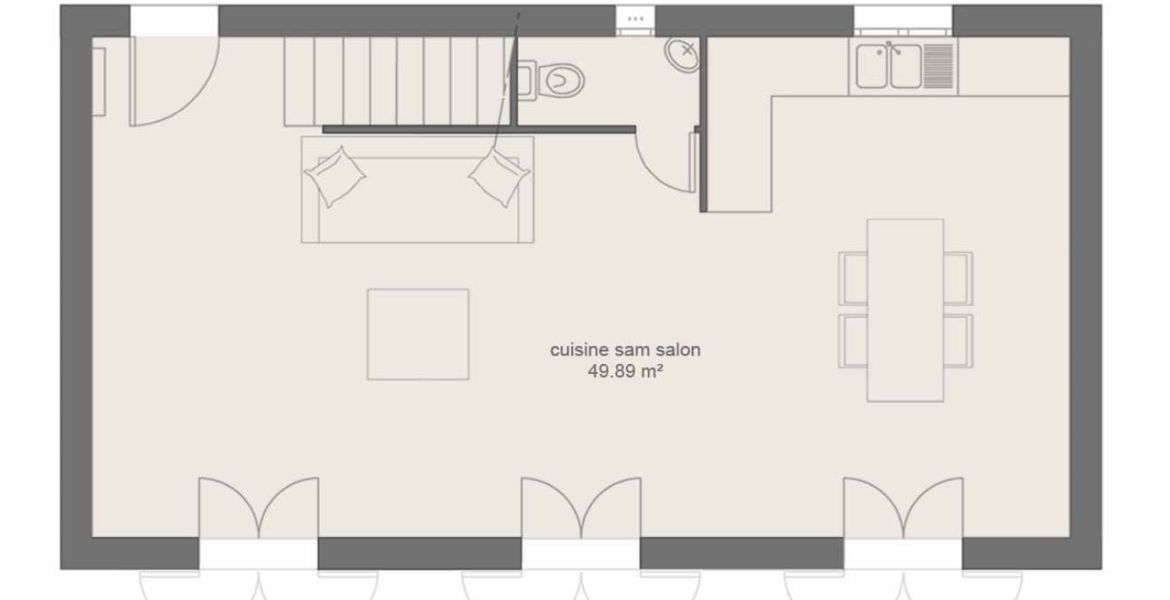
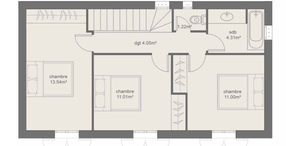
A RIANS sur un terrain de 400 m², TRADISUD vous propose de réaliser cette maison neuve d'une surface de 95 m² habitables avec 3 chambres.
TRADISUD vous propose les prestations suivantes :
- Plan sur-mesure et personnalisé de 2 à 5 chambres
- Mode de chauffage au choix
- Grands choix d'équipements et de prestations
- Matériaux de qualité selon les normes en vigueur
- Accompagnement dans le choix et l’acquisition du terrain
- Construction conforme à la nouvelle RE 2020
Informations du terrain : Terrain plat de 400 M² avec un cabanon. situé en zone urbaine au calme et proche du village.
Viabilisé en bordure.
Emprise au sol pour l'habitable de 20%. pour les annexes 40 %.
Demandez une étude gratuite et personnalisée de votre projet de construction !
Contactez Sébastien RODRIGUEZ au 06 64 09 34 03 ou au 04 42 02 98 99 (Tradisud - Siège de Cabriès).
Prix hors VRD, terrain viabilisé, frais de notaire non compris, frais divers non compris. Terrain sélectionné et vu pour vous sous réserve de disponibilité et au prix indiqué par notre partenaire foncier. Visuels non contractuels.
Caractéristiques
- Modèle présenté : DIAMANT PROVENCALE 2 - 3CH95
- Surface : 95 m²
- Pièces : 5
- Chambres : 3
- Nb salle de bains : 1
- Garage : 0 m2
- Commune : 83560 RIANS
- Surface terrain : 400 m²
- En lotissement : non
- Prix : 127 500 €
Informations complémentaires
Terrain plat de 400 M² avec un cabanon. situé en zone urbaine au calme et proche du village. Viabilisé en bordure. Emprise au sol pour l'habitable de 20%. pour les annexes 40 %.Localisation